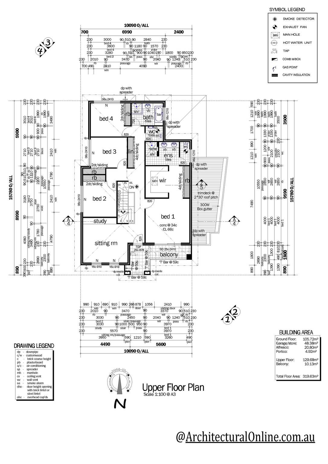
DOUBLE
4 2 2
319.63 m²
$1,980
Enlarge
 

Overview

  • Bedrooms: 4
  • Bathrooms: 2
  • Garage Bays: 2
  • Living Area: 319.63 m²
  • Stories: 2

Beautiful Double Storey on a small lot

This is very stylish 4 bed, 2 bath, 2 gge plus sitting room as well as theatre room. It should fit most of 400m2 and above blocks.