HOME
SINGLES BLOCKS
DUPLEX BLOCKS
MULTI UNITS
APARTMENTS
UPLOAD PLANS
CUSTOM DESIGN QUOTES
MY CART
NEWS
CONTACT
DOUBLE
4
2
2
286.87 m²
$1,650
Enlarge
Overview
Bedrooms:
4
Bathrooms:
2
Garage Bays:
2
Living Area:
286.87 m²
Stories:
2
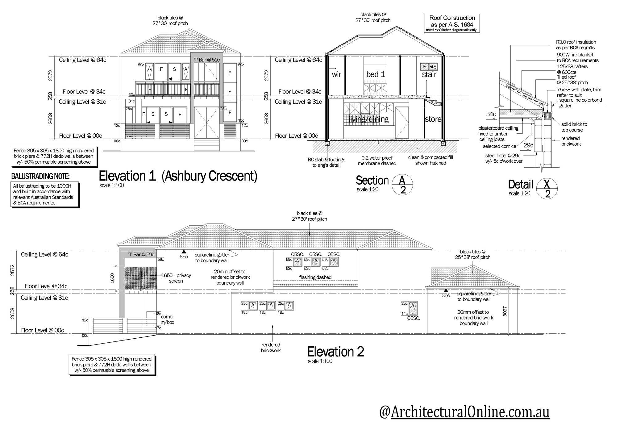
Double Storey House on Narrow Lot
This is 4 bed 2 bath 3 toilet with 2 gge on narrow lot with ROW at the back.
ID: 17
ADD TO CART
Add to Favourite
BROCHURE
Zoom In
Zoom Out
Reset
Zoom In
Zoom Out
Reset
Zoom In
Zoom Out
Reset
Zoom In
Zoom Out
Reset
Zoom In
Zoom Out
Reset
Zoom In
Zoom Out
Reset