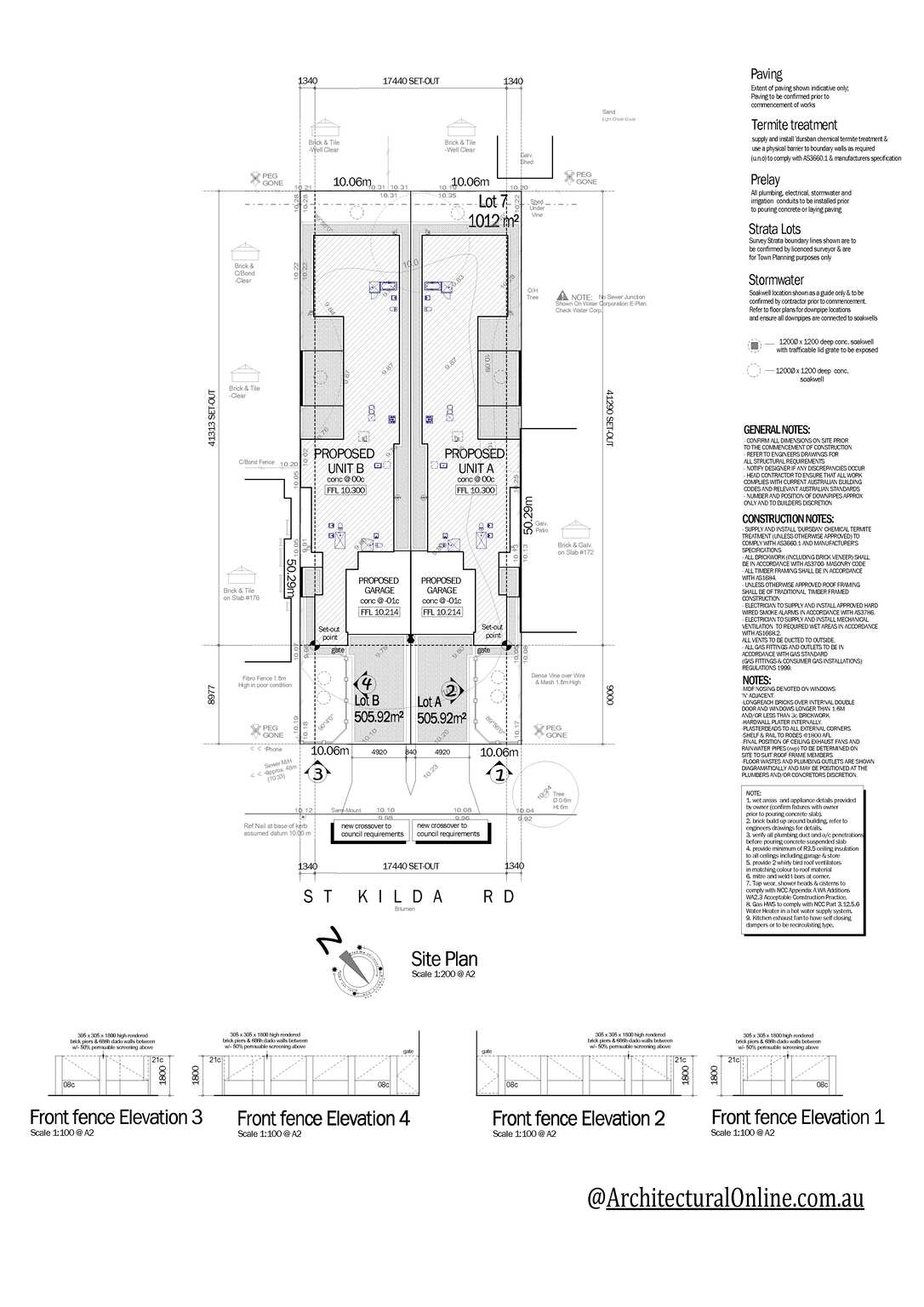
SINGLE
4 3 2
284.68 m²
$2,640
Enlarge
 

Overview

  • Bedrooms: 4
  • Bathrooms: 3
  • Garage Bays: 2
  • Living Area: 284.68 m²
  • Stories: 1

Duplex side by side on narrow deep block

These very unique properies are 4 bed, 3 bath, 2 gge plus study as well as sitting area on a 10m wide lot. Excellent design and very innovative.